Alma Street Townhomes Designed With Purpose

Affordable, accessible townhomes crafted for modern living and lasting impact.

New Project (4)

Building Inclusive, Green Communities

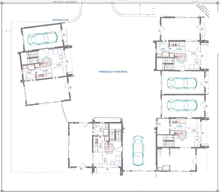
Our latest construction project exemplifies a holistic approach to affordable housing, blending innovative design with sustainable building practices. This thoughtfully planned townhouse plus ADU multi-family development highlights our dedication to accessible, inclusive housing solutions. Every stage of construction embraced green building techniques and energy-efficient systems, incorporating unconventional design and methods that reflect our philosophy: “Plan it with a Planet in Mind.” The permit process demands careful collaboration with local building departments and engineers, ensuring all accessibility standards and building codes are met.

Designing for Everyone, Responsibly

At Affordable Housing Associates, our team works tirelessly to deliver housing that meets diverse community needs while maintaining environmental responsibility and long-term value—creating homes that serve people, communities, and the planet alike.

New Project (6)
698cdd18376b4_1st Story

Smart Design Meets Sustainability

The Alma Street ADUs represent a major leap forward in accessible housing design, blending functionality with environmental responsibility. These thoughtfully planned units showcase how construction innovation can meet the growing demand for affordable housing while upholding the highest standards of accessibility and sustainability.

Each townhome features energy-efficient systems and green building materials, helping residents enjoy lower utility costs and reduced environmental impact. Our approach embraced unconventional construction methods and sustainable design principles, surpassing standard industry practices.

Living Spaces Without Limits

Creating these units required close collaboration with building departments and engineers to ensure compliance with current accessibility standards, all while integrating modern amenities and thoughtful layouts. From wide doorways to accessible bathrooms and adaptable living spaces, each ADU is designed to accommodate residents with diverse mobility needs—proving that affordability, accessibility, and sustainability can coexist beautifully.

Experience-Driven, Impact-Focused

Rooted in years of real estate experience, our Alma Street ADUs demonstrate how unconventional design and energy-efficient practices deliver affordable housing—explore our philosophy.